DGPS °Å¸®°è
  DGPS ¾ÈÅ׳ª
  DGPS ÄÁ¹öÅÍ
  Àû¿Ü¼± Àå°Å¸® ¼¾¼­

  ¹«¼±Åë½Å ±â¹Ý ±¸Ãà
  ¹«¼±Áß°è±â
  ¹«¼±Åë½Å¼­¹ö
  ¹«¼± BRIDGE(¿Á¿ÜÇü)
  ¹«¼± ¾ÈÅ׳ª ¹× ÄÉÀ̺í
  RIOLINK ½Ã½ºÅÛ
  À¯¼± Ç®ÄÚµå °¨½Ã ½Ã½ºÅÛ
  ¹«¼± Ç®ÄÚµå °¨½Ã ½Ã½ºÅÛ

  DLS Laser °Å¸®°è
  »ê¾÷¿ë 2D ·¹ÀÌÀú Á¦¾î±â
  »ê¾÷¿ë 2D ·¹ÀÌÀú ½ºÄ³³Ê

  MEMS Tilt

  ¿­È­»óÄ«¸Þ¶ó½Ã½ºÅÛ

  °ú¿­°ËÃâÁ¦¾îÀåÄ¡
  ºñÁ¢Ã˿µµ¼¾¼­
  ÁÖÇà&WLan °¨½Ã ½Ã½ºÅÛ
  ·Îµå¼¿ Àå·Â°ËÃ⠽ýºÅÛ
  ¿ø°ÝÀåºñ Á¦¾î ½Ã½ºÅÛ
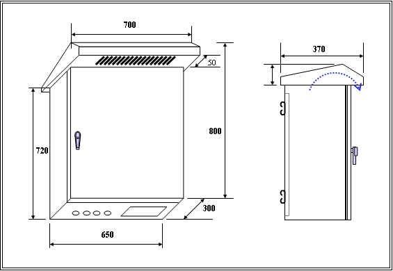
  ºÎ¼ÓÁ¦Ç°ÀÚÀç

 
 
 
 
 

      - Material

      - Size

      - Thickness



      - Weight

      - Mount

      - Enclosure

      - N.F.B

      - Thermostat

      - FAN

      - Power Outlet

      - Light


: STS304

: 700(W) x 800(H) x 370(D)

: Side & Rear - 2.0mm

  Door - 2.5mm

: 25.0 Kg

: Wall-Mount

: NEMA12

: BKM 10A 50AF, LG

: DCTC-090C, Daechang Electric

: 3610PS-22T-B30, Minebea Co., Ltd.

: 15A 250V (6P), Taewon

: FT5001-8W, Shangyu Fortune Electirc